HelseKlinik drøsselbjerg
Forside Fantastisk beliggenhed Mange muligheder Fakta Alternativt brug
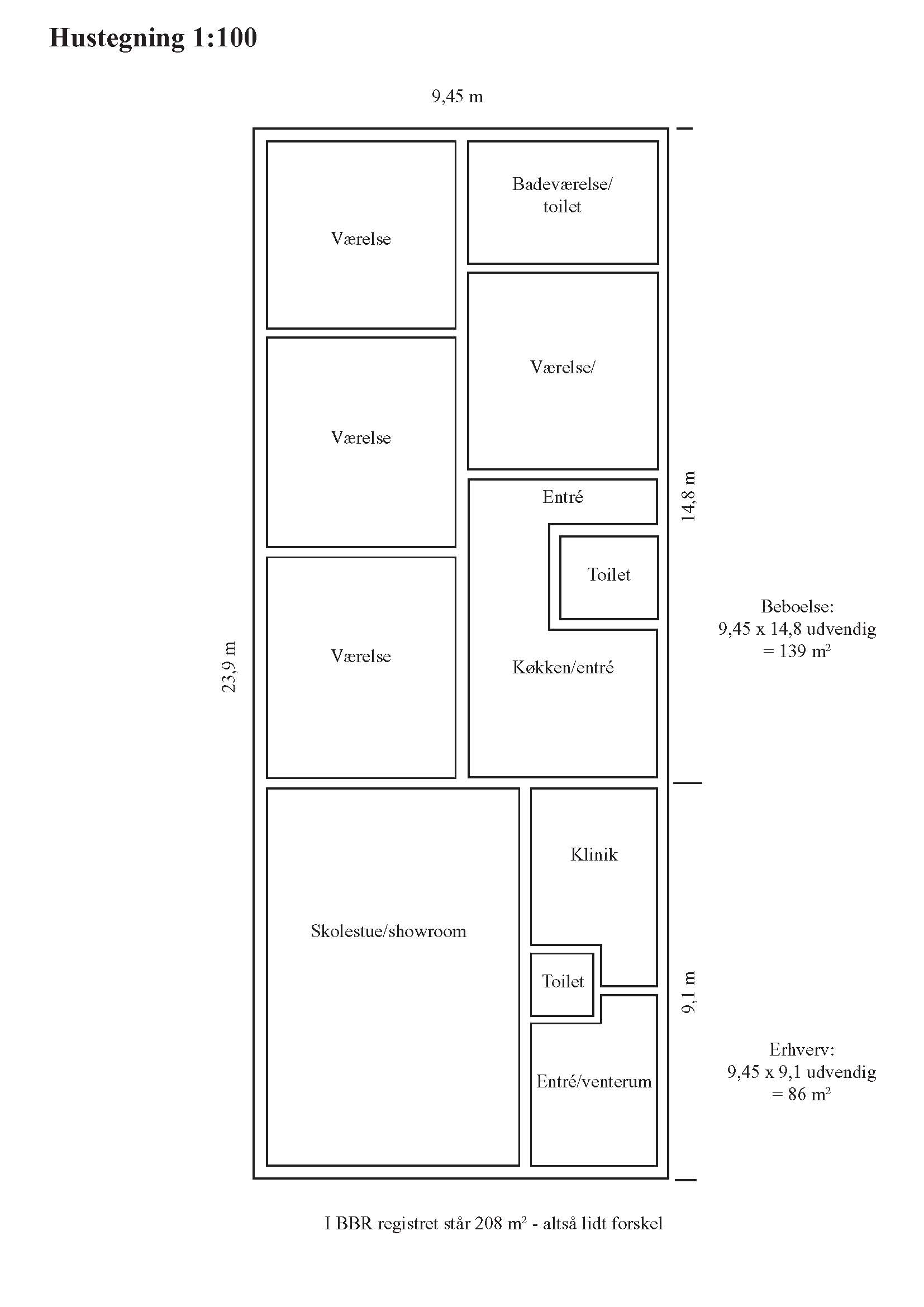
Fleksibel og rummelig ejendom med utallige muligheder

208 m2 beboelse/klinik

150 m2 disponibel på 1. sal

80 m2 garage/værksted

Mange m2 læskur

3.480 m2 grund

Energivenlige dispositioner


Jordvarmeanlæg

Facadeisolering

38 cm tagisolering

11 Kw solpaneler

Mulighed for

At overtage

igangværende virksomhed


Hvis du er behandler indenfor alternativ behandling eller evt. en beslægtet branche som fysioterapi, zoneterapi, psykoterapi eller andet, er der her en unik mulighed for at videreføre en særdeles veldrevet klinik, som kun stopper på grund af behandlerens tilbagetrækning fra arbejdsmarkedet.

Klinikken er drevet så effektivt, at den rette person uden problemer kan indtjene en årsløn samt alle udgifter til drift af ejendommen. Altså en rimelig god forretning.

Alternativt ville en revisor, advokat eller andet liberalt erhverv  her finde de ultimativt bedste adgangsforhold for såvel bil, cykel, løbehjul eller motorcykel - som ved busforbindelser. Samtidig er hele huset og parkeringsområderne indrettet handicapvenligt.

Se grundrids af huset

Se energimærket

Flere billeder

Besøg også gerne Berits hjemmeside

Ejendomsværdien


Kontakt gerne Benny for en fremvisning eller yderligere oplysninger

benny@alfaduo.dk eller 21 29 37 83